CXW-300-CZF01-HPRO
能率灰镜系列平板双腔油烟机
- 双腔对双灶 1V1高效净烟
- 28m³/min爆炒风量 鹰翼式俯吸
- 1000Pa最大静压 创新斜坡增压风道
- 智慧巡航算法 全楼层顺畅排烟
- 双玻璃导烟板 一抹即净好打理
规格参数
产品类型:平板双腔油烟机
额定电压:220V~
额定频率:50Hz
主电机额定输入功率:300W
整机额定输入功率:303W
爆炒功率:400W
最大风量:19m³/min
工作风量:12m³/min
爆炒风量:28m³/min
最大全压效率:≥35%
最大静压:1000Pa
半消声室噪声:66dB(A)
外形尺寸:900×460×605mm
常态气味降低度:≥95%
油脂分离度:≥85%
能效等级:1级
商品详情









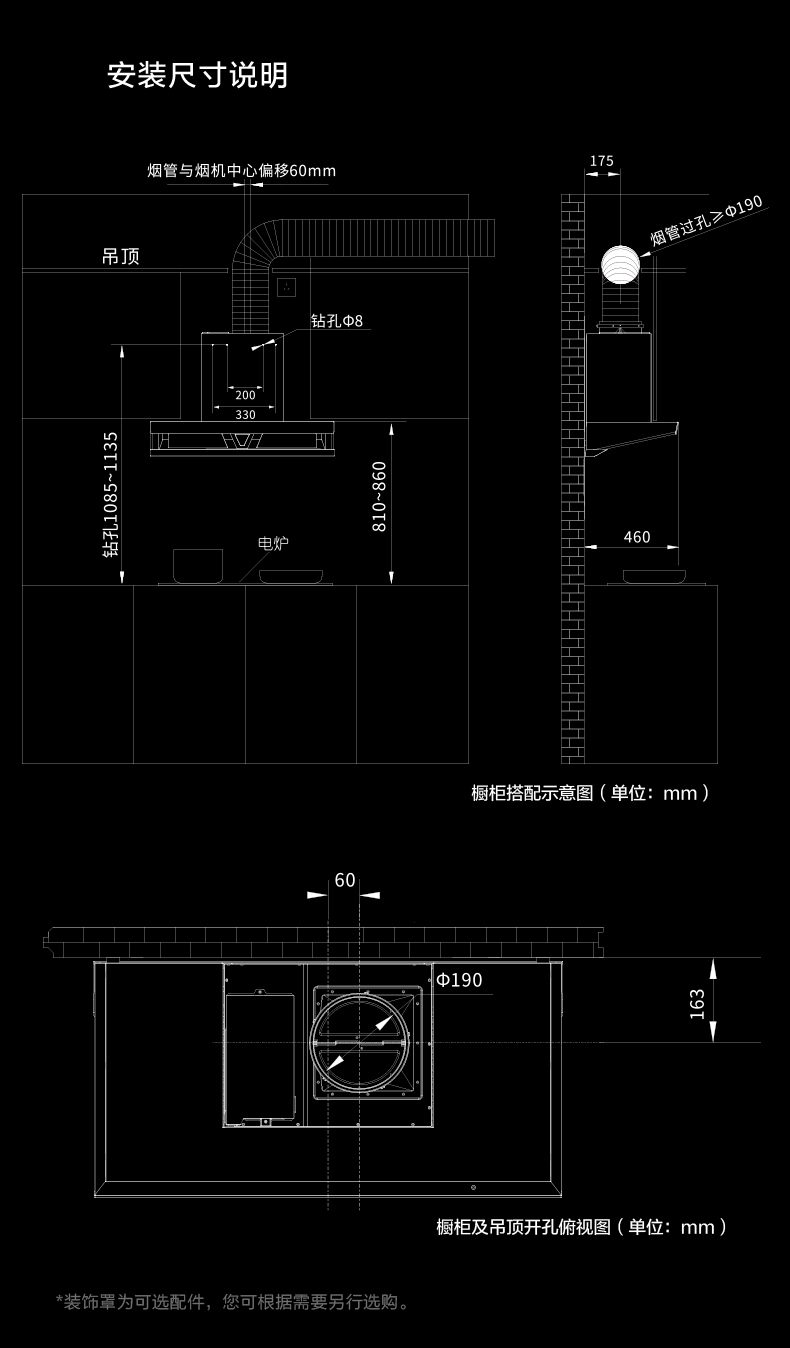
安装示意图






